Attached is the:
- Bill of materials
- Minimum order quantites
- Models and serials onsite
- Product drawings
| Project Name | unit modal | serial number |
| NEW SYDNEY FISH MARKET | CTA 82 (AHU-MZ-01) | CTA230700041 |
| NEW SYDNEY FISH MARKET | CTA 52 (AHU-MZ-02) | CTA230700042 |
| NEW SYDNEY FISH MARKET | CTA 105 (AHU-MZ-03) | CTA230700043 |
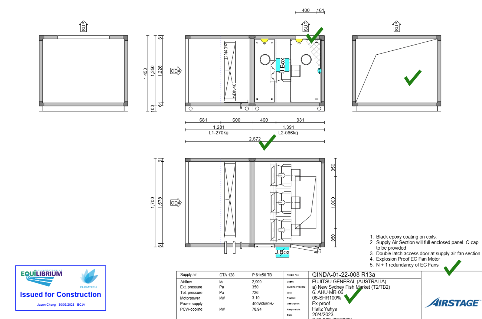
| NEW SYDNEY FISH MARKET | CTA 128 (AHU-MR-06) | CTA230700044 |
| NEW SYDNEY FISH MARKET | CTA 82 (AHU-MZ-06) | CTA230700045 |
| NEW SYDNEY FISH MARKET | CTA 117 (AHU-LG-06) | CTA230700039 |
| NEW SYDNEY FISH MARKET | CTA 67 (AHU-LG-10) | CTA230700040 |
| NEW SYDNEY FISH MARKET | CTA 144 (AHU-MR-01) | CTA230700046 |
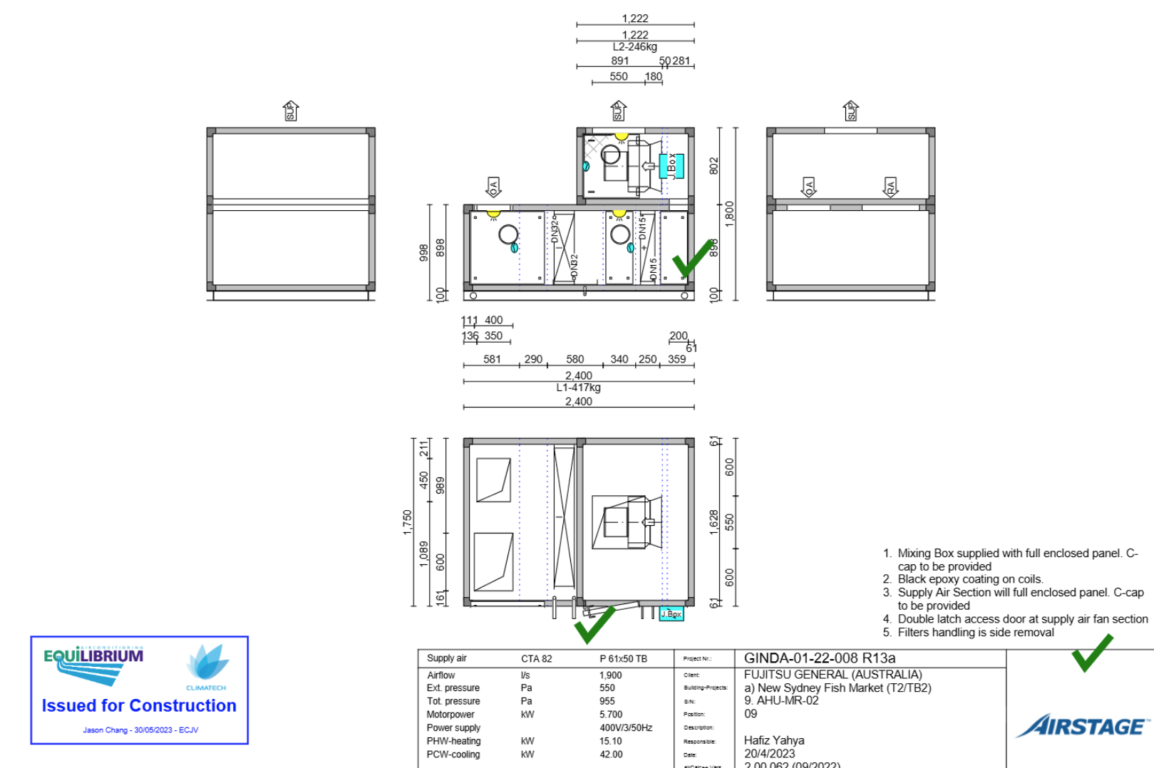
| NEW SYDNEY FISH MARKET | CTA 82 (AHU-MR-02) | CTA230700047 |
| NEW SYDNEY FISH MARKET | CTA 82 (AHU-MR-03) | CTA230700048 |
| NEW SYDNEY FISH MARKET | CTA 82 (AHU-MR-04) | CTA230700049 |
| NEW SYDNEY FISH MARKET | CTA 67 (AHU-MR-05) | CTA230700050 |
| NEW SYDNEY FISH MARKET | CTA 325 (AHU-LG-04) | CTA230700051 |
| NEW SYDNEY FISH MARKET | CTA 245 (AHU-LG-05) | CTA230700052 |
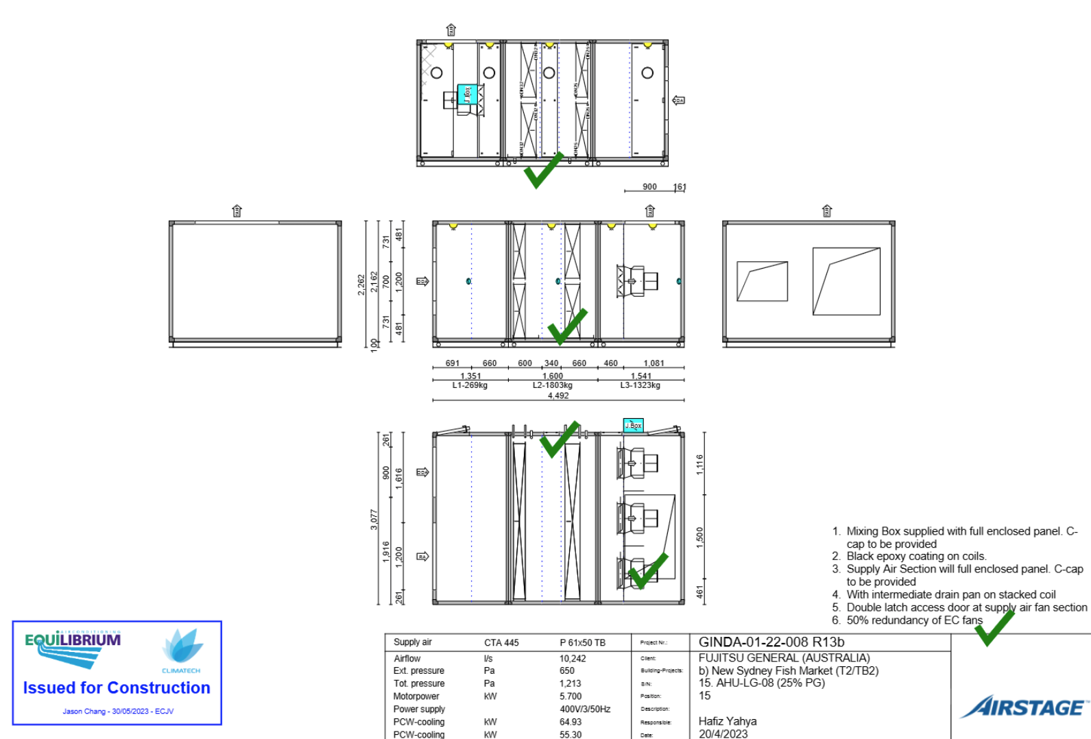
| NEW SYDNEY FISH MARKET | CTA 445 (AHU-LG-08) | CTA230700053 |
| NEW SYDNEY FISH MARKET | CTA 296 (AHU-LG-11) | CTA230700054 |
Minimum quantities ordered
| MINs | |||
| AHU part number | Description | QTY | AU |
| A3100179 | EC FAN, EBM, K3G310PH | 2 | 2 |
| A5200354 | ASSY, COIL, LEFT ,COIL4W | 1 | 0 |
| A5200358 | ASSY, COIL, LEFT ,COIL4W | 1 | 0 |
| A5200362 | ASSY, COIL, LEFT ,COIL4W | 1 | 0 |
| A5200366 | ASSY, COIL, LEFT ,COIL4W | 1 | 0 |
| A5200370 | ASSY, COIL, LEFT ,COIL4W | 1 | 0 |
| A5200374 | ASSY, COIL, LEFT ,COIL4W | 1 | 0 |
| A5200378 | ASSY, COIL, LEFT ,COIL4W, | 1 | 0 |
| A5200382 | ASSY, COIL, LEFT ,COIL4W, | 1 | 0 |
| A5200386 | ASSY, COIL, RIGHT ,COIL4W | 1 | 0 |
| A5200390 | ASSY, COIL, RIGHT ,COIL4W | 1 | 0 |
| A5200394 | ASSY, COIL, RIGHT | 1 | 0 |
| A5200398 | ASSY, COIL, LEFT | 1 | 0 |
| A5200402 | ASSY, COIL, LEFT | 1 | 0 |
| A5200406 | ASSY, COIL, RIGHT ,COIL4W | 1 | 0 |
| A5200410 | ASSY, COIL, RIGHT ,COIL4W | 1 | 0 |
| A5200414 | ASSY, COIL, RIGHT ,COIL4W | 1 | 0 |
| A5200418 | ASSY, COIL, RIGHT ,COIL4W | 1 | 0 |
| A5200422 | ASSY, COIL, LEFT ,COIL4W | 1 | 0 |
| A5200426 | ASSY, COIL, LEFT ,COIL4W | 1 | 0 |
| A5200430 | ASSY, COIL, LEFT ,COIL4W, | 1 | 0 |
| A5200434 | ASSY, COIL, LEFT ,COIL4W | 1 | 0 |
| A5200438 | ASSY, COIL, RIGHT ,COIL4W | 1 | 0 |
| A5200442 | ASSY, COIL, RIGHT ,COIL4W | 1 | 0 |
| A5200446 | ASSY, COIL, LEFT | 1 | 0 |
| A5200450 | ASSY, COIL, RIGHT | 1 | 0 |
| A5200454 | ASSY, COIL, RIGHT | 1 | 0 |
| A5200458 | ASSY, COIL, LEFT ,COIL4W | 2 | 0 |
| A5200462 | ASSY, COIL, LEFT ,COIL4W | 2 | 0 |
| A5200466 | ASSY, COIL, LEFT ,COIL4W | 1 | 0 |
| A5200470 | ASSY, COIL, LEFT ,COIL4W | 1 | 0 |
| A5200490 | ASSY, COIL, RIGHT ,COIL4W | 1 | 0 |
| A5200493 | ASSY, COIL, RIGHT ,COIL4W | 1 | 0 |
| A3100201 | EC FAN, EBM, K3G500PB | 1 | 2 |
| A3100202 | EC FAN, EBM, K3G400AQ | 3 | 2 |
| A1300034 | POLYCARBONATE DOUBLE PORTHOLE (OBP60.00) | 4 | 2 |
Part numbers CTA117
| 1. AHU-LG-06 | ||
| Part Number | Description | Qty/unit |
| A5200354 | ASSY, COIL, LEFT ,COIL4W | 1 |
| A5200358 | ASSY, COIL, LEFT ,COIL4W | 1 |
| A3100179 | EC FAN, EBM, K3G310PH | 2 |
| A1200147 | ALUM, DAMPER, (NON RETURN) 0420H X 0350W | 2 |
| A1300034 | POLYCARBONATE DOUBLE PORTHOLE (OBP60.00) | 4 |
Part numbers CTA67
| 2. AHU-LG-10 | ||
| Part Number | Description | Qty/unit |
| A5200362 | ASSY, COIL, LEFT ,COIL4W | 1 |
| A5200366 | ASSY, COIL, LEFT ,COIL4W | 1 |
| A3100179 | EC FAN, EBM, K3G310PH | 2 |
| A1200147 | ALUM, DAMPER, (NON RETURN) 0420H X 0350W | 2 |
| A1300034 | POLYCARBONATE DOUBLE PORTHOLE (OBP60.00) | 4 |
Part numbers CTA82
| 3. AHU-MZ-01 | ||
| Part Number | Description | Qty/unit |
| A5200370 | ASSY, COIL, LEFT ,COIL4W | 1 |
| A5200374 | ASSY, COIL, LEFT ,COIL4W | 1 |
| A3100179 | EC FAN, EBM, K3G310PH | 2 |
| A1200147 | ALUM, DAMPER, (NON RETURN) 0420H X 0350W | 2 |
| A1300034 | POLYCARBONATE DOUBLE PORTHOLE (OBP60.00) | 4 |
Part numbers CTA52
| 4. AHU-MZ-02 | ||
| Part Number | Description | Qty/unit |
| A5200378 | ASSY, COIL, LEFT ,COIL4W, | 1 |
| A5200382 | ASSY, COIL, LEFT ,COIL4W, | 1 |
| A3100179 | EC FAN, EBM, K3G310PH | 1 |
| A1300034 | POLYCARBONATE DOUBLE PORTHOLE (OBP60.00) | 4 |
Part numbers CTA105
| 5. AHU-MZ-03 | ||
| Part Number | Description | Qty/unit |
| A5200386 | ASSY, COIL, RIGHT ,COIL4W | 1 |
| A5200390 | ASSY, COIL, RIGHT ,COIL4W | 1 |
| A3100201 | EC FAN, EBM, K3G500PB | 1 |
| A1300034 | POLYCARBONATE DOUBLE PORTHOLE (OBP60.00) | 4 |
Part numbers CTA128
| 6. AHU-MR-06 (EX-PROOF MOTOR) | ||
| Part Number | Description | Qty/unit |
| A5200394 | ASSY, COIL, RIGHT | 1 |
| A3100202 | EC FAN, EBM, K3G400AQ | 3 |
| A1200147 | ALUM, DAMPER, (NON RETURN) 0420H X 0350W | 3 |
| A1300034 | POLYCARBONATE DOUBLE PORTHOLE (OBP60.00) | 2 |
Part numbers CTA82
| 7. AHU-MZ-06 | ||
| Part Number | Description | Qty/unit |
| A5200398 | ASSY, COIL, LEFT | 1 |
| A5200402 | ASSY, COIL, LEFT | 1 |
| A3100201 | EC FAN, EBM, K3G500PB | 1 |
| A1300034 | POLYCARBONATE DOUBLE PORTHOLE (OBP60.00) | 4 |
Part numbers CTA144
| 8. AHU-MR-01 | ||
| Part Number | Description | Qty/unit |
| A5200406 | ASSY, COIL, RIGHT ,COIL4W | 1 |
| A5200410 | ASSY, COIL, RIGHT ,COIL4W | 1 |
| A3100201 | EC FAN, EBM, K3G500PB | 1 |
| A1300034 | POLYCARBONATE DOUBLE PORTHOLE (OBP60.00) | 4 |
Part numbers CTA82
| 9. AHU-MR-02 | ||
| Part Number | Description | Qty/unit |
| A5200414 | ASSY, COIL, RIGHT ,COIL4W | 1 |
| A5200418 | ASSY, COIL, RIGHT ,COIL4W | 1 |
| A3100201 | EC FAN, EBM, K3G500 | 1 |
| A1300034 | POLYCARBONATE DOUBLE PORTHOLE (OBP60.00) | 3 |
Part numbers CTA67
| 12- AHU-MR-05 | ||
| Part Number | Description | Qty/unit |
| A5200446 | ASSY, COIL, LEFT | 1 |
| 1 | ||
| A3100179 | EC FAN, EBM, K3G310PH | 2 |
| A1200147 | ALUM, DAMPER, (NON RETURN) 0420H X 0350W | 2 |
| A1300034 | POLYCARBONATE DOUBLE PORTHOLE (OBP60.00) | 3 |
Part numbers CTA325
| 13- AHU-LG-04 | ||
| Part Number | Description | Qty/unit |
| A5200450 | ASSY, COIL, RIGHT | 1 |
| A5200454 | ASSY, COIL, RIGHT | 1 |
| A3100201 | EC FAN, EBM, K3G500PB | 3 |
| A1200148 | ALUM, DAMPER, (NON RETURN) 0500H X 0550W | 3 |
| A1300034 | POLYCARBONATE DOUBLE PORTHOLE (OBP60.00) | 4 |
Part numbers CTA245
| 14- AHU-LG-05 | ||
| Part Number | Description | Qty/unit |
| A5200458 | ASSY, COIL, LEFT ,COIL4W | 2 |
| A5200462 | ASSY, COIL, LEFT ,COIL4W | 2 |
| A3100201 | EC FAN, EBM, K3G500PB | 2 |
| A1200148 | ALUM, DAMPER, (NON RETURN) 0500H X 0550W | 2 |
| A1300034 | POLYCARBONATE DOUBLE PORTHOLE (OBP60.00) | 4 |
Part numbers CTA445
| 15- AHU-LG-08 | ||
| Part Number | Description | Qty/unit |
| A5200466 | ASSY, COIL, LEFT ,COIL4W | 1 |
| A5200470 | ASSY, COIL, LEFT ,COIL4W | 1 |
| A3100201 | EC FAN, EBM, K3G500PB | 3 |
| A1200148 | ALUM, DAMPER, (NON RETURN) 0500H X 0550W | 3 |
| A1300034 | POLYCARBONATE DOUBLE PORTHOLE (OBP60.00) | 4 |
Part numbers CTA296
| 16- AHU-LG-11 | ||
| Part Number | Description | Qty/unit |
| A5200490 | ASSY, COIL, RIGHT ,COIL4W | 1 |
| A5200493 | ASSY, COIL, RIGHT ,COIL4W | 1 |
| A3100201 | EC FAN, EBM, K3G500PB | 3 |
| A1200148 | ALUM, DAMPER, (NON RETURN) 0500H X 0550W | 3 |
| A1300034 | POLYCARBONATE DOUBLE PORTHOLE (OBP60.00) | 4 |
Unit drawings















