Attached is the:
- Bill of materials
- Minimum order quantites
- Models and serials onsite
- Product drawings
| project name | unit modal | unit serial number |
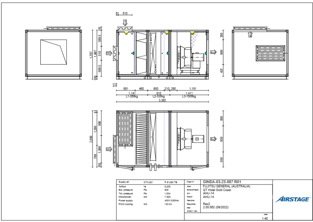
| QT HOTEL GOLD COAST | CTA 221 (AHU-14) | CTA230900120 |
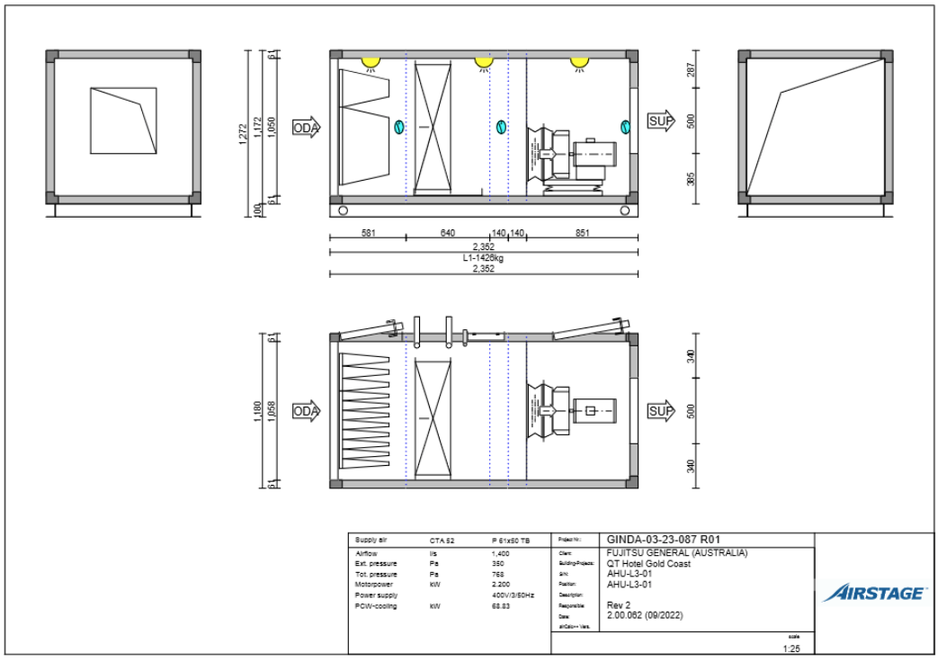
| QT HOTEL GOLD COAST | CTA 52 (AHU-L3-01) | CTA230900121 |
Part numbers CTA221
| CTA221-23-00061 | ||||
| Alu. Profile | Ref | Part Number | Description | Qty |
| A5600074 | GROUP, FAN MOTOR, CTA221-23-00061 | 1 | ||
| Drive Package | A3100244 | PLUG FAN, KRUGER, BNC-P710/DI(I) (7.5kW-4P) (W/SPRING) | 1 | |
| A3100100 | MOTOR, 7.5KW-4P B3T, IE2, ALLIANCE, 400/3/50 | 1 | ||
| COIL | A5200554 | COIL ASSEMBLY, RIGHT | 1 | |
| A3300009 | FILTER,SECONDARY,BAG,F7 (6P),594 X 594 X 381MM | 6 | ||
| A3300010 | FILTER,SECONDARY,BAG,F7 (3P),289 X 594 X 381MM | 3 | ||
| A1200166 | ALUM, DAMPER, 510H X 1200W | 1 | ||
| A1200167 | ALUM, DAMPER, 510H X 1000W | 1 | ||
| A2200008 | PRESSURE GAUGE, MAGNEHELIC, DPSTAR, 2000-500PA | 1 | ||
Part numbers CTA52
| CTA52-23-00062 | |||
| Ref | Part Number | Description | Qty |
| A5600078 | GROUP, FAN MOTOR, CTA52-23-00062 | 1 | |
| Drive Package | A3100197 | PLUG FAN, KRUGER, BNC-R355 K/DI(I) (2.2kW-2P) (W/SPRING) | 1 |
| A3100079 | MOTOR, 2.2KW-2P B3T, IE2, ALLIANCE, 400/3/50 | 1 | |
| COIL | A5200557 | COIL ASSEMBLY, LEFT | 1 |
| A3300009 | FILTER,SECONDARY,BAG,F7 (6P),594 X 594 X 381MM | 1 | |
| A3300010 | FILTER,SECONDARY,BAG,F7 (3P),289 X 594 X 381MM | 2 | |
| A2200008 | PRESSURE GAUGE, MAGNEHELIC, DPSTAR, 2000-500PA | 1 |
Mins ordered
| MINs | |||
| AHU part number | Description | QTY | AU |
| A3100244 | PLUG FAN, KRUGER, BNC-P710/DI(I) (7.5kW-4P) (W/SPRING) | 1 | 0 |
| A3100100 | MOTOR, 7.5KW-4P B3T, IE2, ALLIANCE, 400/3/50 | 1 | 0 |
| A3300009 | FILTER,SECONDARY,BAG,F7 (6P),594 X 594 X 381MM | 6 | 0 |
| A3300010 | FILTER,SECONDARY,BAG,F7 (3P),289 X 594 X 381MM | 3 | 0 |
| A1200166 | ALUM, DAMPER, 510H X 1200W | 1 | 0 |
| A1200167 | ALUM, DAMPER, 510H X 1000W | 1 | 0 |
| A2200008 | PRESSURE GAUGE, MAGNEHELIC, DPSTAR, 2000-500PA | 1 | 0 |
| A3100197 | PLUG FAN, KRUGER, BNC-R355 K/DI(I) (2.2kW-2P) (W/SPRING) | 1 | 0 |
| A3100079 | MOTOR, 2.2KW-2P B3T, IE2, ALLIANCE, 400/3/50 | 1 | 0 |
| A5200557 | COIL ASSEMBLY, LEFT | 1 | 0 |
AHU 14 (CTA221)

AHU L3 (CTA52)

ASANA TASK https://app.asana.com/1/12690082022742/project/1204415988001091/task/1204699003215321?focus=true